Il tuo immobile è qui
United Kingdom flag    EN
vendi_icon
Vendi e affitta
blog
Blog
account_icon
Chi siamo
United Kingdom flag    EN
Via Santa Croce 20 Milano MI
Centro Storico
6.500.000 €
Prezzo

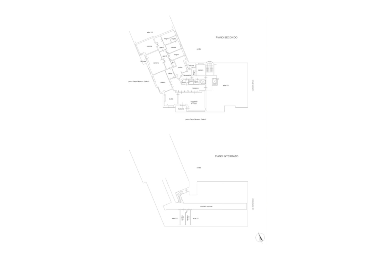
Prestigioso Appartamento Panoramico Via Santa Croce

In una delle zone più affascinanti e storiche di Milano, con affaccio diretto e panoramico sul suggestivo Parco delle Basiliche, proponiamo in vendita esclusivo appartamento di 380 mq, sito al 2° piano, completamente arredato con finiture di assoluto pregio, dove eleganza classica e comfort contemporaneo convivono in perfetto equilibrio.

L’abitazione è caratterizzata da ampie porte-finestre presenti in ogni ambiente, che regalano una luminosità straordinaria e una vista aperta e continua sul verde del parco, creando un’atmosfera di rara bellezza e grande rappresentanza.

L’ingresso introduce a un importante spazio di accoglienza che conduce a un salone doppio panoramico, ideale per ricevimenti e momenti di convivialità, affiancato da uno studio riservato e da una raffinata sala da pranzo. La zona giorno è completata da un elegante bagno ospiti.

La cucina abitabile, concepita a livello professionale, è dotata di quattro forni, doppi fuochi e attrezzature di altissima gamma, pensate per soddisfare anche le esigenze più elevate. A servizio della casa si trovano una camera di servizio con bagno, una lavanderia/stireria e un comodo secondo ingresso indipendente.

La zona notte offre spazi ampi e perfettamente organizzati. La master bedroom dispone di un prestigioso bagno en suite e di un’ampia area guardaroba. Seguono una seconda camera matrimoniale con bagno privato e una grande camera doppia, facilmente trasformabile in due camere indipendenti, anch’essa servita da bagno dedicato.

Le finiture sono di livello eccellente: bagni rivestiti in marmo Calacatta Oro, armadiature su misura rivestite in seta, arredi lussuosi realizzati su misura e un raffinato stile classico che conferisce all’immobile un carattere esclusivo e senza tempo.
Completano la proprietà due box ed una cantina
Una residenza di assoluta rappresentanza, ideale per chi desidera vivere nel cuore di Milano in un contesto unico, con spazi generosi, massima privacy e una vista impareggiabile sul verde e sulla storia della città.

Documenti Scaricabili


Caratteristiche

Codice annuncio

S.ta Croce_Vend_

Superficie commerciale

350 mq

Locali

8

Piano

2

Camere

4

Bagni

4

Balconi

2

Cucina

Abitabile

Riscaldamento

Centralizzato

Arredamento

Arredato

Cantina

10 mq

Spese condominiali

12.000 €/anno

Voglio ricevere comunicazioni in anteprima per conoscere tutti i nuovi immobili e servizi di Quimmo e dei suoi partner di fiducia.
Voglio ricevere comunicazioni in anteprima dai partner di fiducia sui loro immobili e servizi adatti ai miei interessi.
Voglio ricevere comunicazioni su prodotti e servizi in linea con i miei interessi.
Voglio conoscere in anteprima via email le novità su Quimmo Prestige agency, sul mercato immobiliare, e sul network Abilio
Invia il tuo messaggio
Cliccando sul bottone “Invia il tuo messaggio” accetti le nostre Condizioni generali e l’Informativa sulla privacy