Il tuo immobile è qui
United Kingdom flag    EN
vendi_icon
Vendi e affitta
blog
Blog
account_icon
Chi siamo
United Kingdom flag    EN
Via Magolfa 18A Milano MI
1.950.000 €
Prezzo

Il fascino di una residenza in corte

Nell’esclusivo Opificio di Via Magolfa 18, di recente realizzazione, proponiamo in vendita una raffinata residenza su due livelli, sintesi perfetta tra fascino antico e qualità del vivere moderno.
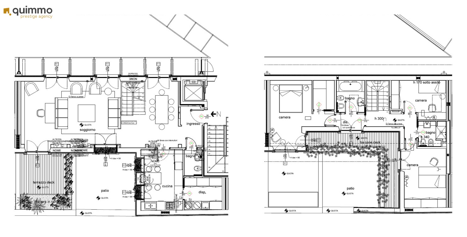
L’ingresso si apre su un importante living, con spazi ben definiti per la zona pranzo e la zona conversazione. Grandi vetrate si affacciano sul giardino della corte e su un’ampia terrazza abitabile. La cucina, separata, è molto spaziosa e funzionale: accesso diretto al locale lavanderia.
Una scala interna di design conduce al piano superiore dove sono realizzate due accoglienti camere da letto, ciascuna con proprio bagno dedicato, e una terza camera/studio.
L’intero complesso è dotato di sistema centralizzato di riscaldamento e condizionamento in geotermia, con regolazione autonoma in ogni ambiente.
Assolutamente unica l’area wellness con palestra, piscina coperta con idromassaggio, sauna e bagno turco.
Completano la proprietà un ampio box auto con annesso spazio ad uso deposito, disponibile separatamente al prezzo di € 80.000, oltre a una cantina.

Documenti Scaricabili


Caratteristiche

Codice annuncio

Magolfa_VENDITA

Superficie commerciale

180 mq

Locali

7

Piano

2

Camere

3

Bagni

3

Balconi

2

Cucina

Abitabile

Riscaldamento

Centralizzato

Cantina

1 mq

Spese condominiali

12.000 €/anno

Voglio ricevere comunicazioni in anteprima per conoscere tutti i nuovi immobili e servizi di Quimmo e dei suoi partner di fiducia.
Voglio ricevere comunicazioni in anteprima dai partner di fiducia sui loro immobili e servizi adatti ai miei interessi.
Voglio ricevere comunicazioni su prodotti e servizi in linea con i miei interessi.
Voglio conoscere in anteprima via email le novità su Quimmo Prestige agency, sul mercato immobiliare, e sul network Abilio
Invia il tuo messaggio
Cliccando sul bottone “Invia il tuo messaggio” accetti le nostre Condizioni generali e l’Informativa sulla privacy