Il tuo immobile è qui
United Kingdom flag    EN
vendi_icon
Vendi e affitta
blog
Blog
account_icon
Chi siamo
United Kingdom flag    EN
Via Bertini 3 Milano MI
Centro Storico
1.350.000 €
Prezzo

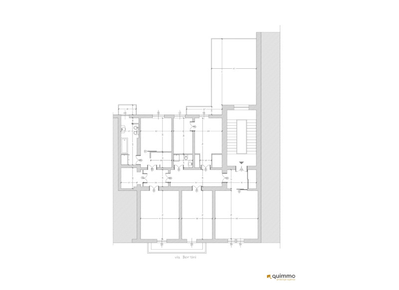
Appartamento di 180 mq con terrazzo in stabile d'epoca

All’interno di uno stabile d’epoca, a pochi passi da Parco Sempione e dalla moderna Paolo Sarpi, proponiamo in vendita 180 mq con terrazzo di 25 mq.
L’appartamento, da personalizzare, si colloca al primo piano alto di una palazzina di soli tre piani. Unico appartamento al piano è caratterizzato da ampi ed eleganti spazi, soffitti alti e un raro terrazzo privato di circa 25 mq che affaccia sul delizioso e tranquillo cortile interno. L’immobile si presenta in stato originale, con dettagli dell’epoca, un doppio affaccio e numerosi balconi.
L’ingresso introduce a un grande corridoio centrale di rappresentanza, che disimpegna con armonia tutti gli ambienti della casa. La zona giorno si apre su un luminoso soggiorno doppio, con parquet in rovere con raffinata posa alla francese, soffitti decorati e ampie porte finestre che donano ariosità.
Un plus esclusivo dell’appartamento è rappresentato dal delizioso terrazzo privato di circa 25 mq, un angolo verde e riservato, perfettamente vivibile in ogni stagione; ideale per cene all’aperto, momenti di relax o uno spazio gioco per i più piccoli.
La grande cucina abitabile si presta ad un progetto funzionale con isola e si colloca vicino al terrazzo.
La zona notte si compone di tre camere da letto ben distribuite: la camera master è dotata di un ampio bagno dedicato e una grande cabina armadio.
Le ulteriori due camere, dotate di bagno con doccia, completano la zona notte con grande versatilità: stanze ideali per bambini o ragazzi o perfette per diventare uno studio professionale e una sala hobby o una raffinata camera per gli ospiti.
La flessibilità di questi ambienti consente di adattarli con facilità alle esigenze quotidiane per chi desidera creare spazi funzionali e facilmente personalizzabili.
La residenza rappresenta un’opportunità ideale per famiglie o per chi desidera un’abitazione da realizzare secondo il proprio stile, in una zona strategica e ben servita, a pochi passi da Parco Sempione. Offre inoltre la possibilità di intervenire sugli spazi, mantenendo e valorizzando gli affascinanti dettagli d’epoca, preservando tutto il fascino dell’architettura originaria.
Alcune immagini sono render utili a visualizzare la disposizione degli spazi interni, le possibili finiture e le soluzioni di arredo.
Completa la proprietà una doppia cantina di pertinenza.
Richiesta € 1.350.000

Documenti Scaricabili


Caratteristiche

Codice annuncio

Bertini_180

Superficie commerciale

180 mq

Locali

5

Piano

1

Camere

3

Bagni

2

Balconi

1

Cucina

Abitabile

Arredamento

Non Arredato

Spese condominiali

7.000 €/anno

Voglio ricevere comunicazioni in anteprima per conoscere tutti i nuovi immobili e servizi di Quimmo e dei suoi partner di fiducia.
Voglio ricevere comunicazioni in anteprima dai partner di fiducia sui loro immobili e servizi adatti ai miei interessi.
Voglio ricevere comunicazioni su prodotti e servizi in linea con i miei interessi.
Voglio conoscere in anteprima via email le novità su Quimmo Prestige agency, sul mercato immobiliare, e sul network Abilio
Invia il tuo messaggio
Cliccando sul bottone “Invia il tuo messaggio” accetti le nostre Condizioni generali e l’Informativa sulla privacy