Il tuo immobile è qui
United Kingdom flag    EN
vendi_icon
Vendi e affitta
blog
Blog
account_icon
Chi siamo
United Kingdom flag    EN
Via Zumbini 39 Milano MI
4.800 €
Canone mensile

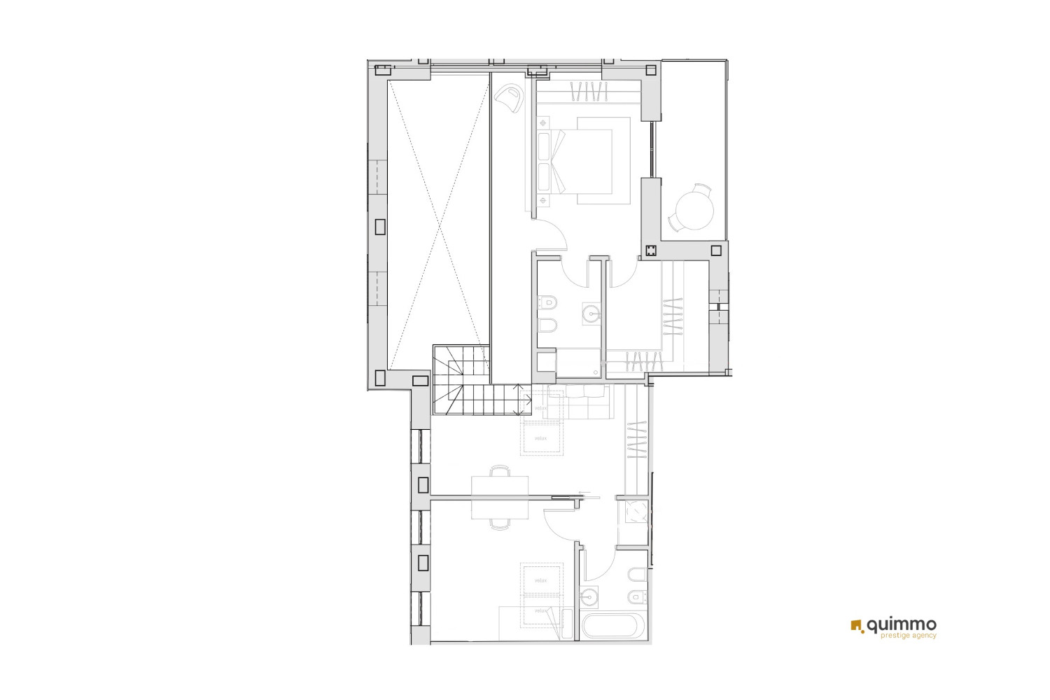
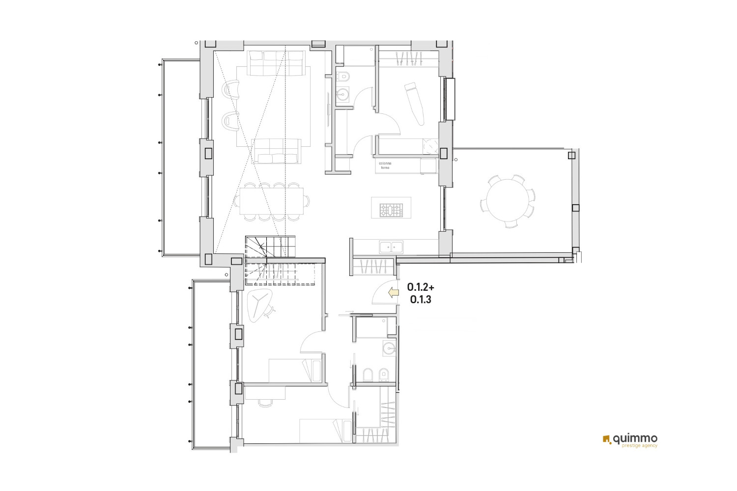
Magnifica residenza su due livelli

Il nuovo complesso residenziale Forrest in Town, sito in Via Zumbini, sorge nel quartiere San Cristoforo sul Naviglio, uno dei quartieri storici di Milano, adiacente al Naviglio Grande. In questo contesto esclusivo dal mood country chic, proponiamo in locazione affascinante appartamento, semi arredato, su due livelli , 250 mq con grande terrazzo e balconi. Il luminoso living, a doppia altezza, accoglie generosamente la luce naturale dalle numerose finestre che si aprono su un magnifico balcone con vista sul giardino della corte interna. Una splendida cucina di design, interamente arredata e dotata di tutti gli elettrodomestici, si integra perfettamente con l’ambiente living e grazie all’ampia terrazza interna, si proietta in una piacevole zona pranzo esterna. Ampia zona di servizio dotata di lavanderia e locale guardaroba. Al piano del soggiorno troviamo due camere da letto singole con bagno dedicato. Una scala moderna, caratterizzata dall'uso di pietra e ferro, conduce al primo piano dove la grande balconata crea uno spazio ad uso studio, illuminato dalla luce naturale delle finestre ovali. Grande camera master con terrazza privata impreziosita da un’ampia cabina armadio e da un bellissimo bagno. Un' ulteriore camera da letto con bagno dedicato , porta a quattro le camere totali . Ogni dettaglio è stato curato con attenzione, garantendo un ambiente elegante ed accogliente. Il connubio tra la modernità della parte impiantistica centralizzata ed elementi tradizionali come l’uso delle travi a vista, rende questa residenza un luogo unico. Questo splendido complesso residenziale offre non solo comfort e stile, ma anche un tocco di natura e attività fisica, mettendo a disposizione dei residenti un orto ricco di erbe aromatiche e verdure fresche, e una moderna palestra completamente attrezzata. Completa la proprietà un grande box doppio e una cantina.


Documenti Scaricabili


Caratteristiche

Codice annuncio

Zumbini 250mq _copia

Superficie commerciale

250 mq

Piano

2

Camere

4

Bagni

4

Spese condominiali

10.000 €/anno

Voglio ricevere comunicazioni in anteprima per conoscere tutti i nuovi immobili e servizi di Quimmo e dei suoi partner di fiducia.
Voglio ricevere comunicazioni in anteprima dai partner di fiducia sui loro immobili e servizi adatti ai miei interessi.
Voglio ricevere comunicazioni su prodotti e servizi in linea con i miei interessi.
Voglio conoscere in anteprima via email le novità su Quimmo Prestige agency, sul mercato immobiliare, e sul network Abilio
Invia il tuo messaggio
Cliccando sul bottone “Invia il tuo messaggio” accetti le nostre Condizioni generali e l’Informativa sulla privacy