Il tuo immobile è qui
United Kingdom flag    EN
vendi_icon
Vendi e affitta
blog
Blog
account_icon
Chi siamo
United Kingdom flag    EN
Via San Marco 1 Milano MI
Centro Storico
2.125 €
Canone mensile

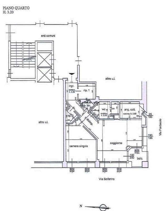
Bilocale di charme nel cuore di Brera

Nel cuore di Brera, inserito nell’immobile progettato dall’architetto Vico Magistretti, proponiamo splendido bilocale di charme.
L’appartamento, posto al quarto piano, è perfettamente arredato e ben organizzato in ogni sua funzione.
Il living è dotato di un delizioso balconcino loggiato da cui si gode una vista aperta sui tetti di Brera: cucina a vista organizzata con tutti gli elettrodomestici.
Camera matrimoniale, ampia cabina armadio, bagno con grande doccia.
Riscaldamento e condizionamento centralizzato.
Portineria tutta la giornata.

Documenti Scaricabili


Caratteristiche

Codice annuncio

SanMarco1 - LOC

Superficie commerciale

50 mq

Piano

4

Cucina

A Vista

Camere

1

Bagni

1

Riscaldamento

Centralizzato

Arredamento

Arredato

Spese condominiali

4.550 €/anno

Stato interno

Ristrutturato

Voglio ricevere comunicazioni in anteprima per conoscere tutti i nuovi immobili e servizi di Quimmo e dei suoi partner di fiducia.
Voglio ricevere comunicazioni in anteprima dai partner di fiducia sui loro immobili e servizi adatti ai miei interessi.
Voglio ricevere comunicazioni su prodotti e servizi in linea con i miei interessi.
Voglio conoscere in anteprima via email le novità su Quimmo Prestige agency, sul mercato immobiliare, e sul network Abilio
Invia il tuo messaggio
Cliccando sul bottone “Invia il tuo messaggio” accetti le nostre Condizioni generali e l’Informativa sulla privacy